Save
Ask
Tour
Hide
$1,299,000
56 Days On Site
12801 Barbara Ann StreetNorth Hollywood, CA 91605
For Sale|Residential Income|Active
0
Beds
0
Total Baths
1939
Built
Subdivision:
Not Applicable
County:
Los Angeles
Listed by Ashrif Hammad of COMPASS [email protected]
Call Now: +1 (562) 337-3915
Is this the listing for you? We can help make it yours.
+1 (562) 337-3915



Save
Ask
Tour
Hide
Mortgage Calculator
Monthly Payment (Est.)
$5,927Calculator powered by Showcase IDX, a Constellation1 Company. Copyright ©2026 Information is deemed reliable but not guaranteed.
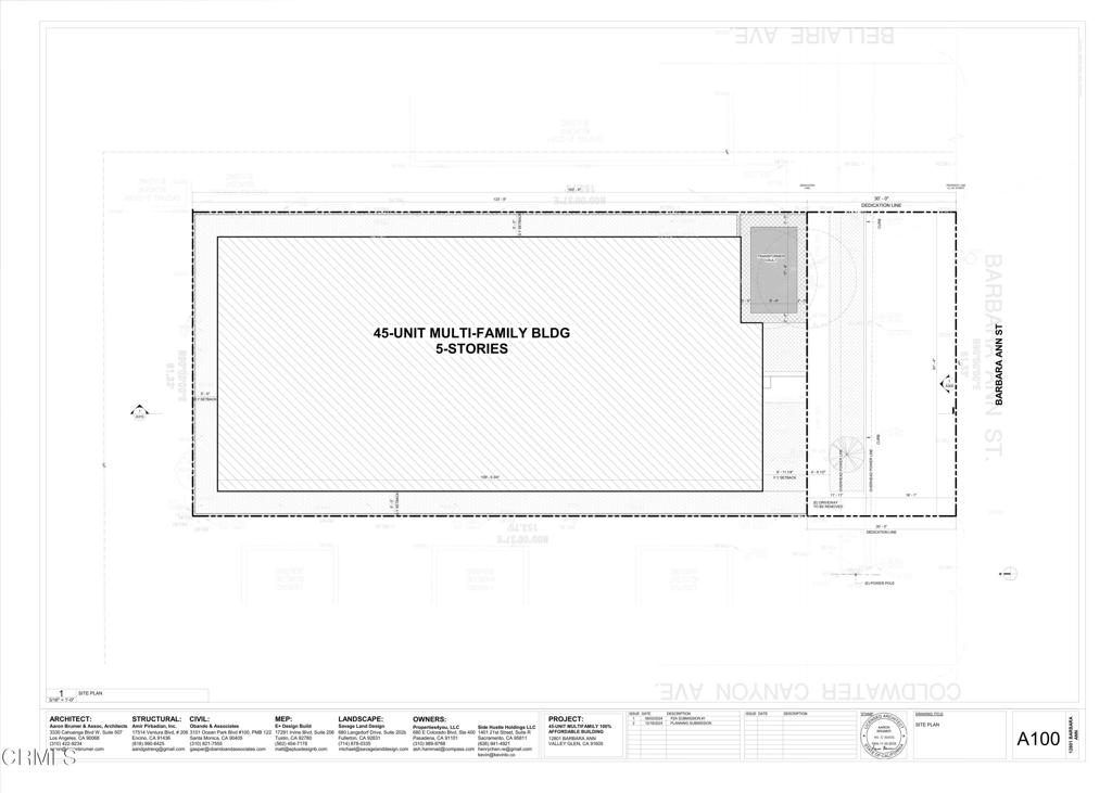
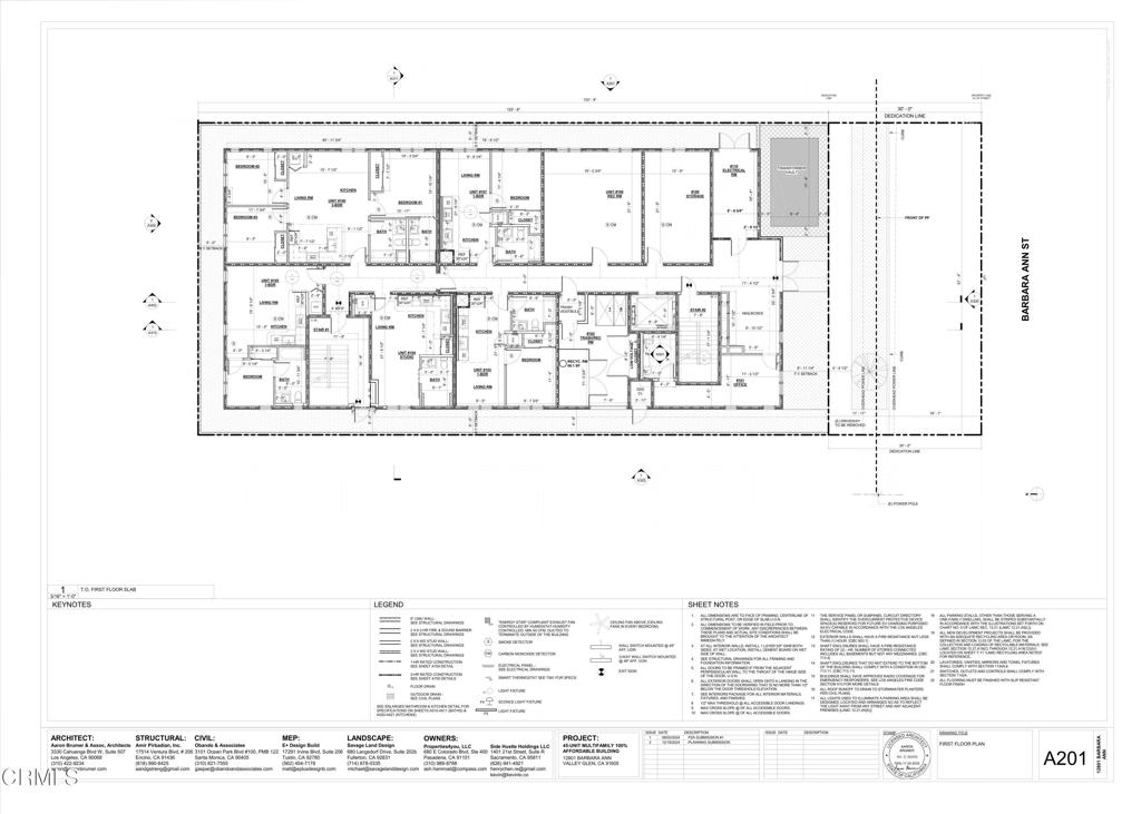
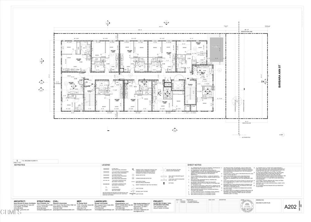
12801 Barbara Ann St, Valley Glen, CA 91605New Affordable Housing Development Opportunity - To be sold with RTI PlansShovel-ready project in Valley Glen featuring 45 units:43 one-bedrooms1 studio1 three-bedroom replacement unitRTI plans and covenant available upon request. Site also offers potential for two future ADUs.A rare chance to acquire a fully entitled, ready-to-build affordable housing development in a strong rental market.
Save
Ask
Tour
Hide
Listing Snapshot
Price
$1,299,000
Days On Site
56 Days
Bedrooms
N/A
Inside Area (SqFt)
N/A
Total Baths
N/A
Full Baths
N/A
Partial Baths
N/A
Lot Size
0.2177 Acres
Year Built
1939
MLS® Number
P1-25349
Status
Active
Property Tax
N/A
HOA/Condo/Coop Fees
N/A
Sq Ft Source
N/A
Friends & Family
Recent Activity
| 2 months ago | Listing updated with changes from the MLS® | |
| 2 months ago | Listing first seen on site |
General Features
Acres
0.2177
Land Lease
No
Parking
None
Sewer
Public Sewer
Special Circumstances
Standard
Water Source
Public
Interior Features
Fireplace Features
None
Laundry Features
None
Save
Ask
Tour
Hide
Exterior Features
Fencing
None
Pool Features
None
Spa Features
None
View
None
Waterview
None
Community Features
Community Features
Curbs
Financing Terms Available
CashConventional
MLS Area
NHO - North Hollywood
This information is for your personal, non-commercial use and may not be used for any purpose other than to identify prospective properties you may be interested in purchasing. The display of MLS data is usually deemed reliable but is NOT guaranteed accurate by the MLS. Buyers are responsible for verifying the accuracy of all information and should investigate the data themselves or retain appropriate professionals. Information from sources other than the Listing Agent may have been included in the MLS data. Unless otherwise specified in writing, the Broker/Agent has not and will not verify any information obtained from other sources. The Broker/Agent providing the information contained herein may or may not have been the Listing and/or Selling Agent.
Neighborhood & Commute
Source: Walkscore
Disclosure: Community information and market data powered by Constellation Data Labs. Information is deemed reliable but not guaranteed.
Save
Ask
Tour
Hide


Did you know? You can invite friends and family to your search. They can join your search, rate and discuss listings with you.