12441 VerdiMarina Del Rey, CA 90066




Mortgage Calculator
Monthly Payment (Est.)
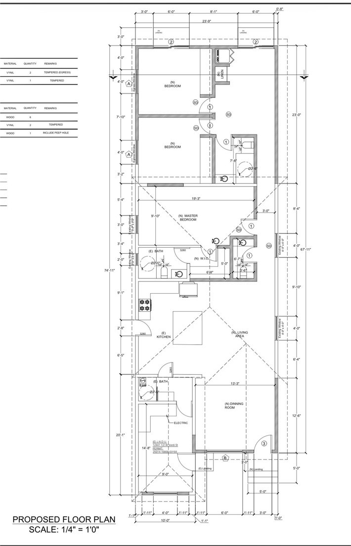
$6,159Unlock a lucrative opportunity in Marina del Rey with this fully renovated 3-bedroom, 2-bathroom property, ideally suited for builders and investors looking to maximize their return. Located just minutes from the beach, this property not only offers immediate rental potential but also comes with a ready-to-issue (RTI) permit for an additional estimated 704 square feet, allowing you to expand to a 4-bedroom, 4-bathroom layout. Key Investment Highlights: -Flexible Property Use: The current layout can be utilized as a spacious single-family residence or converted into two rental units: a 2-bedroom, 1-bathroom and a JADU (Junior Accessory Dwelling Unit) with 1 bedroom and 1 bathroom. Both units feature separate addresses while sharing utilities, enhancing rental income possibilities. - Ready-to-Issue Permit (RTI): The property comes with an RTI permit to add an estimated 704 square feet, allowing for a seamless expansion. This expansion can be executed while retaining the existing kitchen and bathrooms, making it an efficient project for builders looking to increase property value quickly. - Projected After Repair Value (ARV): Once expanded to a 4-bedroom, 4-bathroom layout, the property’s ARV is estimated between $1.8 million and $2.1 million. This significant increase in value makes it a compelling investment opportunity. - Prime Location: Situated in the highly sought-after Marina del Rey area, this property is just minutes from the beach, ensuring strong demand and high rental yields. - Turnkey Condition: Fully renovated and move-in ready, this property requires no immediate work, making it an attractive investment for those looking to generate income quickly. - Growth Potential: With the added square footage and resulting ARV, you can significantly enhance the property’s market value, making it an ideal project for savvy investors and builders. This is a prime opportunity for builders and investors to secure a property in a desirable location while benefiting from a straightforward expansion plan. Don’t miss out on the chance to capitalize on this unique investment!
| 3 weeks ago | Status changed to Active | |
| 3 weeks ago | Listing updated with changes from the MLS® | |
| a month ago | Listing first seen on site |
This information is for your personal, non-commercial use and may not be used for any purpose other than to identify prospective properties you may be interested in purchasing. The display of MLS data is usually deemed reliable but is NOT guaranteed accurate by the MLS. Buyers are responsible for verifying the accuracy of all information and should investigate the data themselves or retain appropriate professionals. Information from sources other than the Listing Agent may have been included in the MLS data. Unless otherwise specified in writing, the Broker/Agent has not and will not verify any information obtained from other sources. The Broker/Agent providing the information contained herein may or may not have been the Listing and/or Selling Agent.


Did you know? You can invite friends and family to your search. They can join your search, rate and discuss listings with you.